Listed by Margolin and von Trapp Team of Coldwell Banker Hickok and Boardman

Listing Sold by RE/MAX North Professionals
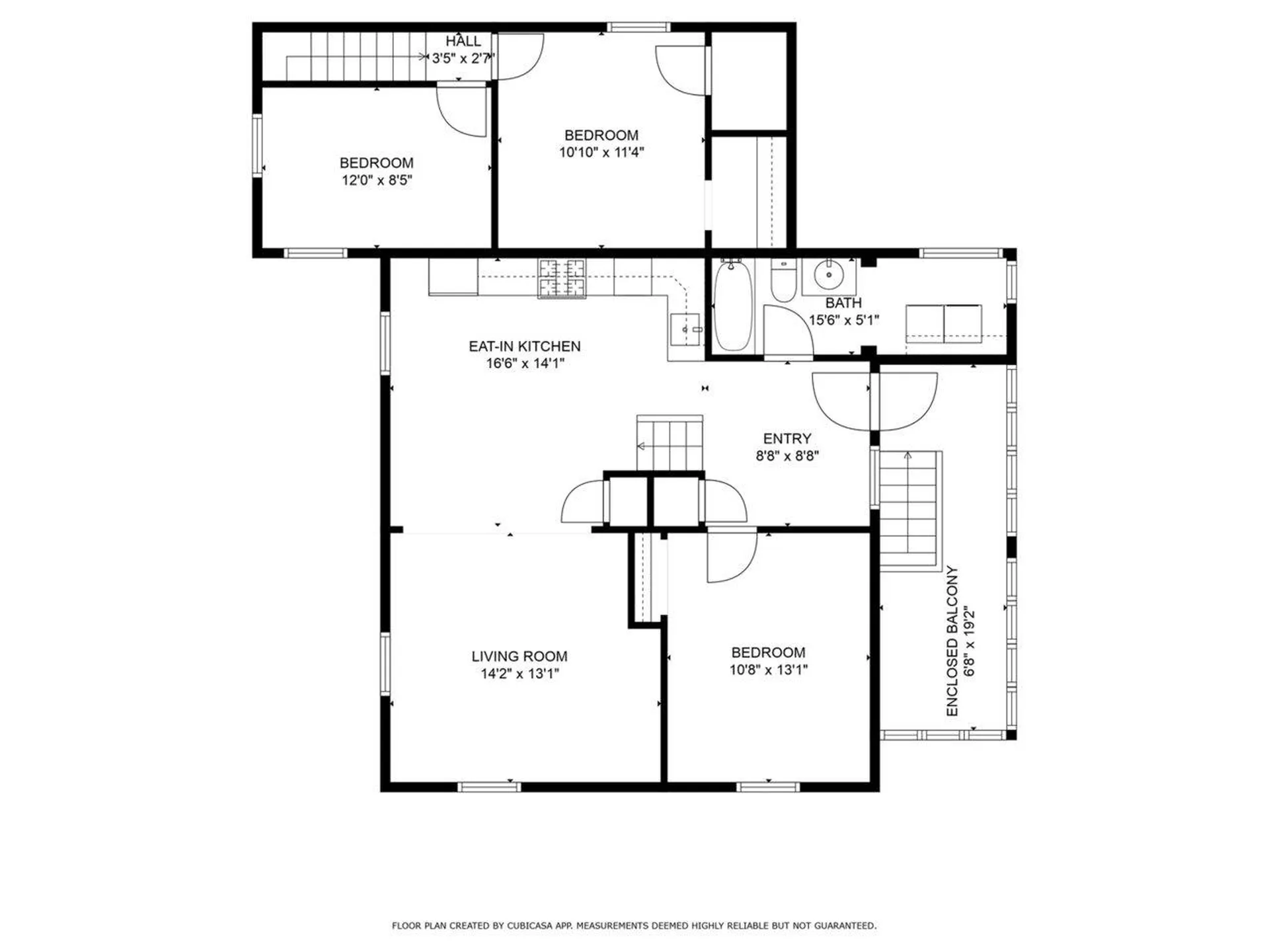
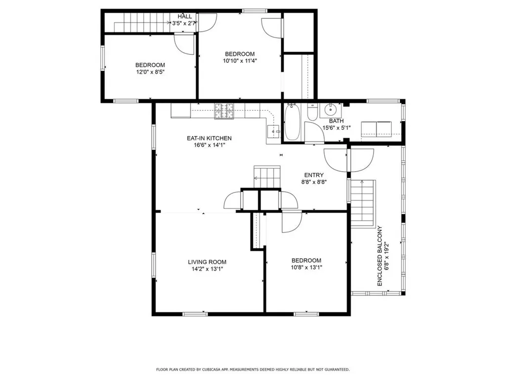
This beautiful 1920's duplex in the heart of Winooski has all the character & charm of its vibrant history. The property's 2 spacious units plus a detached 1-car garage offer a great opportunity to owner-occupy & rent the other unit, or to rent both with excellent return. The home's classic wrap-around front porch is the ideal place to relax. Out back, enjoy the partially fenced yard, patio, plus a variety of apple & pear trees, grape vines, & berry bushes of all kinds! Unit A is an expansive 1,700 sq. ft. space with 2 beds on the 1st level & 2 on the 2nd plus 1.5 baths. The main level features hardwood floors, classic wood trim details, galley kitchen with gas range, laundry area, & spacious living room with gas fireplace. The upstairs bedrooms are carpeted & cozy with attic access. Unit B has 2 bedrooms & a renovated full bath with laundry, updated kitchen & entryway with tile floors, & an open concept living room & bedroom with VT Hickory floors. The 2nd bedroom is a delightful, converted attic space on the top floor, accessed by a custom maple stairway, with carpeting & nooks under the eaves. As a bonus, this wonderful property has the possibility to convert to 3 units and/or accommodate an ADU for additional income. The home's slate roof has been well-maintained & a newer asphalt roof & systems have been added, plus the home has been audited and updated for energy efficiency. Close to schools, shopping, & restaurants. Don't miss this opportunity!

Listing Tools

Property Details of 119 Lafountain Street

Property Details

Interior Features

Exterior Features

Utilities and Appliances

Community

Map Location

Driving Directions

Broker Reciprocity 

Copyright 2025 PrimeMLS, Inc. All rights reserved. This information is deemed reliable, but not guaranteed. The data relating to real estate displayed on this display comes in part from the IDX Program of PrimeMLS. The information being provided is for consumers’ personal, non-commercial use and may not be used for any purpose other than to identify prospective properties consumers may be interested in purchasing. Data last updated November 6, 2025 4:13 PM EST

 

Hi there! How can we help you?

Contact us using the form below or give us a call.

Send Us A Message:

I agree to receive marketing and customer service calls and text messages from Flat Fee Real Estate. To opt out, you can reply 'stop' at any time or click the unsubscribe link in the emails. Consent is not a condition of purchase. Msg/data rates may apply. Msg frequency varies. Privacy Policy.

Do not fill in this field:

This site is protected by reCAPTCHA and the Google Privacy Policy and Terms of Service apply.

Hi there! How can we help you?

Contact us using the form below or give us a call.

Send Us A Message:

Do not fill in this field:

This site is protected by reCAPTCHA and the Google Privacy Policy and Terms of Service apply.

Hi there! How can we help you?

Contact us using the form below or give us a call.

Send Us A Message:

Do not fill in this field:

This site is protected by reCAPTCHA and the Google Privacy Policy and Terms of Service apply.

Do not fill in this field:

This site is protected by reCAPTCHA and the Google Privacy Policy and Terms of Service apply.

Do not fill in this field:

This site is protected by reCAPTCHA and the Google Privacy Policy and Terms of Service apply.

Do not fill in this field:

This site is protected by reCAPTCHA and the Google Privacy Policy and Terms of Service apply.

$

Do not fill in this field:

This site is protected by reCAPTCHA and the Google Privacy Policy and Terms of Service apply.